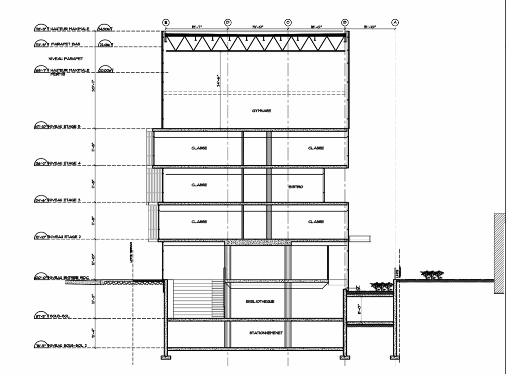
In the first issue of the TAV Times, we featured the plans for he new TAV College building, which is expected to be complete by the fall of 2020.
The new building will house a state-of-the-art library on the ground level, as well as a massive gymnasium on the fifth. This building will also be the saving grace for TAV due to its largely expanding student population each year.

Aside from the original plans, a few design specifications have changed. Therefore, we decided to show you the new finalized plans for the TAV College 2020 building.
There have not been major changes to the original plans, aside form the addition of angled, protruding and recessed walls to give the building a modern finish. The building will also have a beautiful, metallic facade that compliments the trend of modern Montreal architecture.


